
風門機械閉鎖裝置是無壓風門最常配套的簡單閉鎖器,它體積小巧,安裝簡單,常常有吊桶式的樣式,立式的樣式存在,一般適用于安單扇風門、雙向無壓風門,減壓風門等各類型大巷通風風門,一般兩風門配套使用,起到相互閉鎖,防止風門同時打開作用。
風門機械閉鎖裝置在煤礦中是便宜的存在,也是實用的存在,煤礦在預算有限的時候總會選擇一套機械閉鎖來實現風門的互鎖作用。雖然現在眾多新技術的閉鎖出現給煤礦帶來了極大的方便,但是機械閉鎖的選購卻從未減少過。風門機械閉鎖的優勢非常的名顯,這也是它回購率較高的原因機械閉鎖為純機械結構,不需要電,無安全隱患,高、低瓦斯礦均可使用。性能可靠,不需要做防水防潮處理。而電控閉鎖系統需防水防潮可靠,否則系統紊亂,電器元件使用壽命大大降低。結構簡單,易學易用,煤礦可以自行安裝,出現故障后自己隨時可以解決不會耽使用時間。
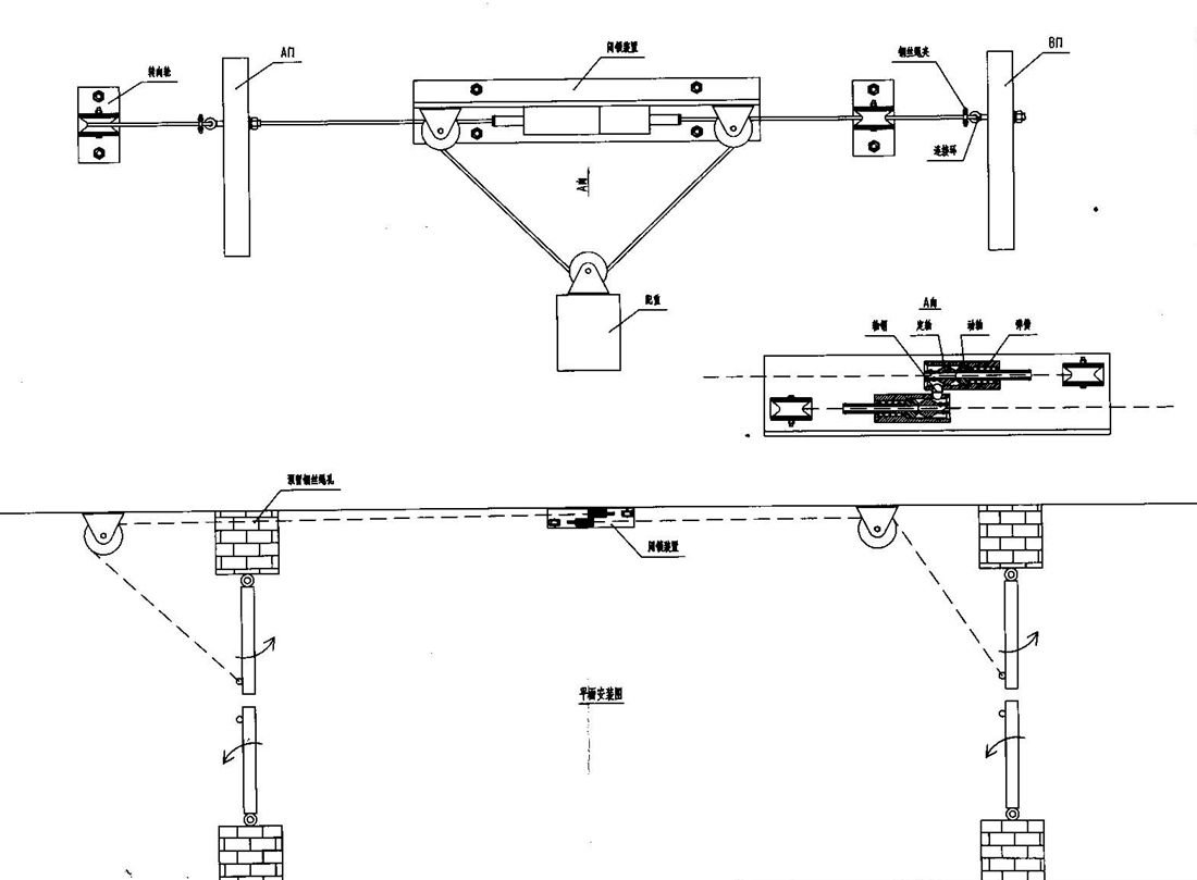
風門機械閉鎖工作原理
機械閉鎖裝置是怎么工作的呢?機械閉鎖裝置主要是用于兩道無壓風門的,當A門開啟時帶動鋼絲繩移動,固定在鋼絲繩上的定軸隨之移動,彈簧伸長將動軸頂起,動軸將軸銷推到另一側,軸銷將與B門相連的鋼絲繩上的定軸固定,B門不能開啟。當A門關閉時,配重帶動鋼絲繩向回移動,定軸將動軸壓回原位,軸銷可以移動,B門解鎖。同理,B門開啟時,A門也不能開啟。
在使用一段時間后,機械閉鎖可能會出現一些小狀況,我們要怎么解決呢?易出現的問題,由于機械閉鎖為鋼絲繩結構的,在使用一段時間后會出現鋼絲繩磨損或回彈力不好造成風門漏風的現象,我們只需更換鋼絲繩即可,一般五金市場都可以買到。









管理員
該內容暫無評論